2d cad drawing of large family country house electrical layout plan autocad software
Description
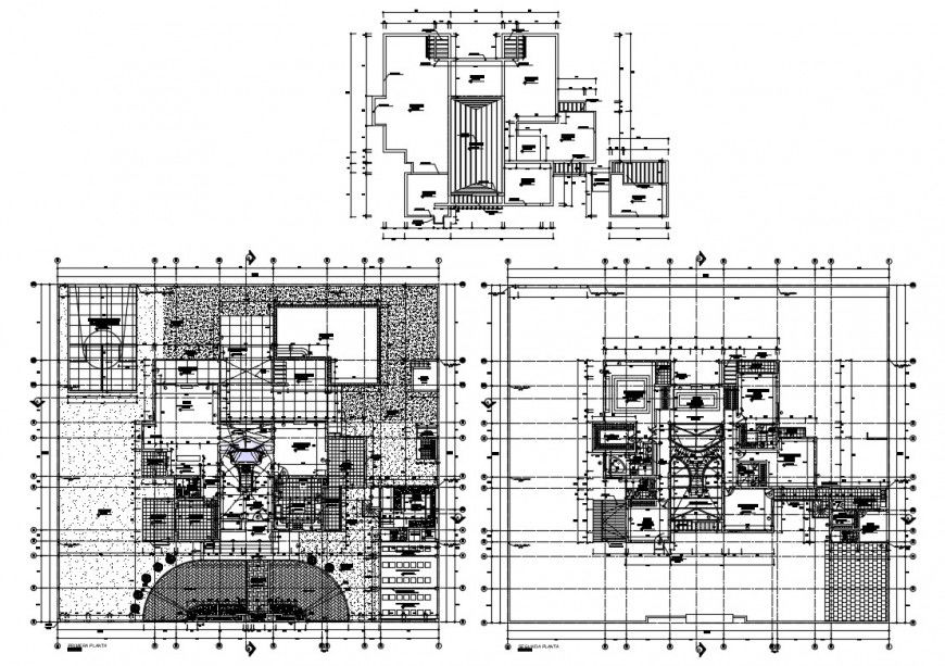
2d cad drawing of large family country house electrical layout plan autocad software detailed with room connection shown with all floor plan with room elevation with attached electrical connection and dimension metioned and circled square elevation.
Uploaded by:
Eiz
Luna
