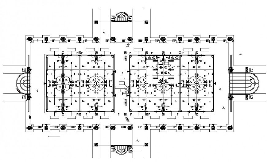
Detailing drawings plan of industrial building units dwg file
Description
Detailing drawings plan of industrial building units dwg file that shows work plan drawings details of building along with machinery units details dimension hidden line details also included in drawings.
Uploaded by:
Eiz
Luna
