Drawings details of apartment floor plan dwg file
Description
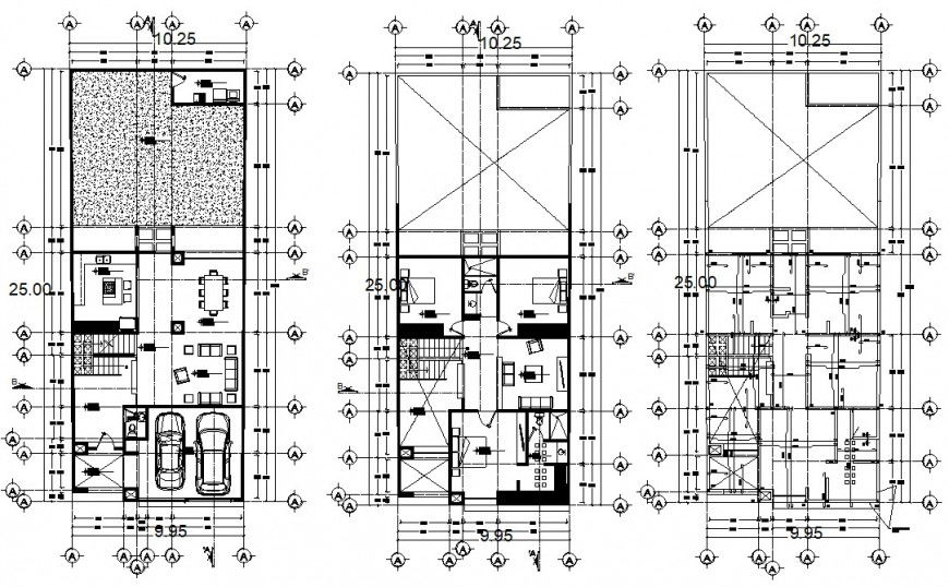
Drawings details of apartment floor plan dwg file that shows work of house along with furniture blocks details and room details of drawings room bedroom kitchen and dining area sanitary toilet bathroom dtetails staircase floor level details dimension hidden line detail also included in drawings.
Uploaded by:
Eiz
Luna

