2d CAD drawings of living housing apartment autocad software file
Description
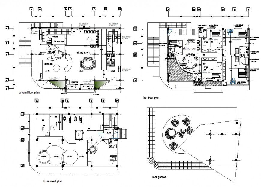
2d CAD drawings of living housing apartment autocad software file that shows work plan drawing of building along with room details of drawings room bedroom kitchen and dining area sanitary toilet bathroom details staircase floor level details dimension hidden line detail also included in drawings.
Uploaded by:
Eiz
Luna

