2d Center line plan of house CAD drawings in autocad software file
Description
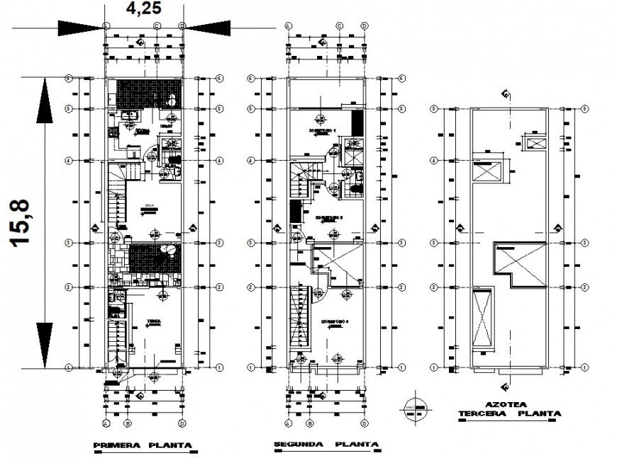
2d Center line plan of house CAD drawings in autocad software file that shows work plan drawing of building along with room details of drawings room bedroom kitchen and dining area sanitary toilet bathroom details staircase floor level details dimension hidden line details also included in drawings.
Uploaded by:
Eiz
Luna

