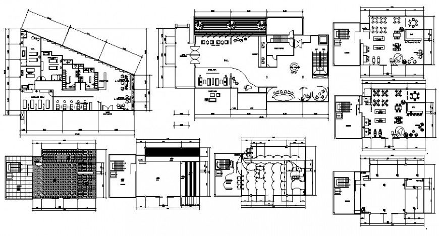
Luxurious restaurant with spa lobby floor plan distribution cad drawing details dwg file
Description
Luxurious restaurant with spa lobby floor plan distribution cad drawing details that includes car parking view with garden area, reception area with waiting lounge, dining area with banquet hall and kitchen and cleaning department details and staff room and sanitary facilities provides with furniture details with interior details and much more of restaurant project with free download auto-cad file.
Uploaded by:
Eiz
Luna
