2d cad drawing of park parts autocad software
Description
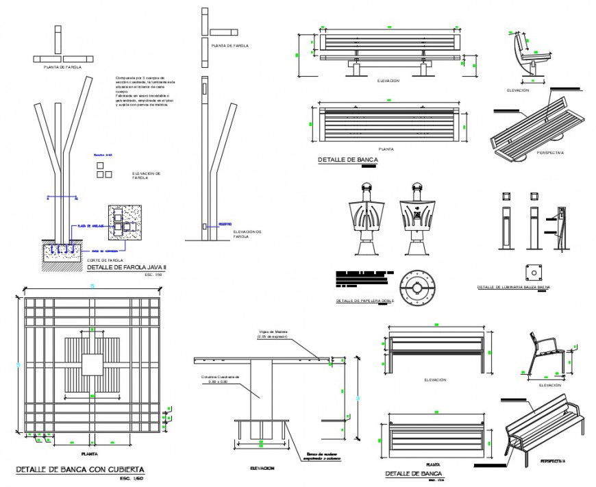
2d cad drawing of park parts autocad software detailed with all basic description with alligned lines and other round panel and banca elevation with staraight alligned connected bench.
Uploaded by:
Eiz
Luna

