House wood door section, framing and installation details dwg file
Description
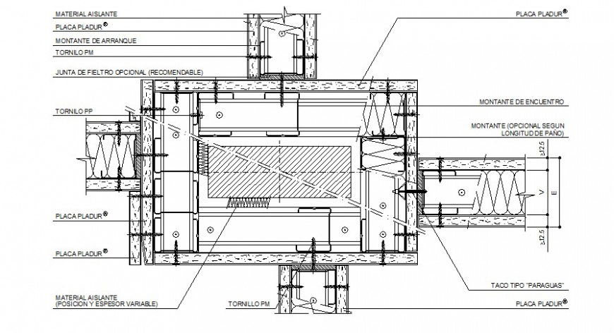
House wood door section, framing and installation details that includes wires and fences and galvanized mesh with clamps galv, aluminum couplings amarres galv, rh place 1 into the spot and 2 in the corners, pe as reinforcement in straight sections, technical specifications and model selection, symbology details, dimensions details with joints details and much more of door installation details.
File Type:
DWG
File Size:
139 KB
Category::
Dwg Cad Blocks
Sub Category::
Windows And Doors Dwg Blocks
type:
Gold
Uploaded by:
Eiz
Luna

