2d cad drawing of shopping mall buster autocad software
Description
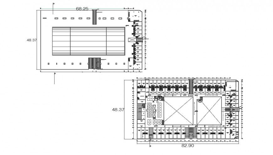
2d cad drawing of shopping mall buster autocad software detailed with floor elevation and row area elevation and floor plan drawing and other greenery elevation around with common plot area with considered shops.
Uploaded by:
Eiz
Luna

