2d cad drawing of shopping center kitchen autocad software
Description
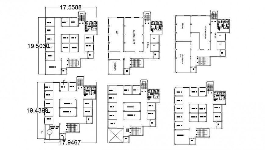
2d cad drawing of shopping centre kitchen autocad software detaied with basic shop elevtion with cafeteria area and other detaield bar area and kitcehn outlet and restaurant area and it shows the estaircase area with detailed kitchen area.
Uploaded by:
Eiz
Luna
