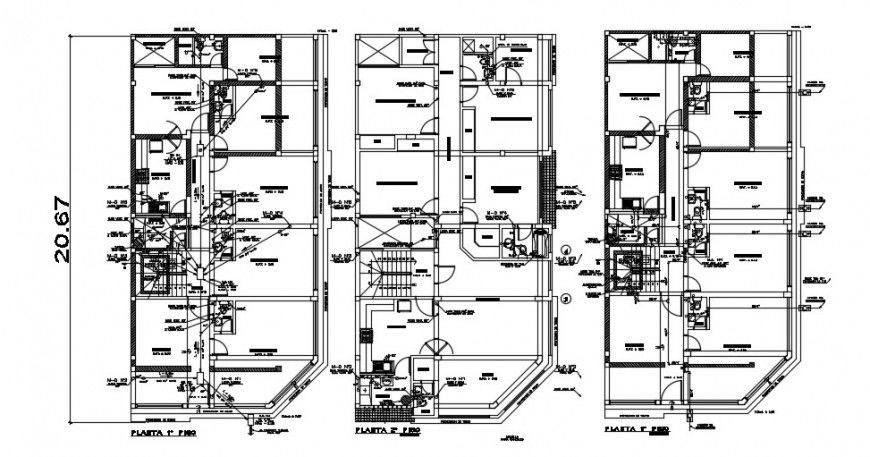
Multi-family three story building distribution and electrical details dwg file
Description
Multi-family three story building distribution and electrical details that includes a detailed view of main entry house door, drawing room and living room with family hall details kitchen and dining area, indoor staircases and laundry area and balcony with computation and schedule of loads with general notes and specifications, panel board details, riser diagram with legends and electric equipment details, cable details and dimensions details and much more of building details.
Uploaded by:
Eiz
Luna

