2d cad drawing of control box elevation autocad software
Description
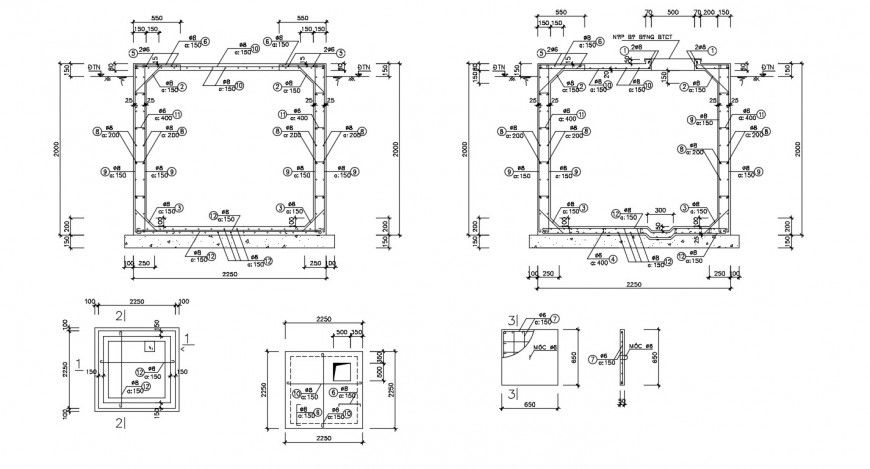
2d cad drawing of control box elevation autocad software detaield with floor construction and combined with foundation slab and attached concrete detailing with floor tiles and connected route plan in drawing with dimension.
File Type:
DWG
File Size:
137 KB
Category::
Construction
Sub Category::
Construction Detail Drawings
type:
Gold
Uploaded by:
Eiz
Luna

