2d cad drawing of public toilet seprate section autocad software
Description
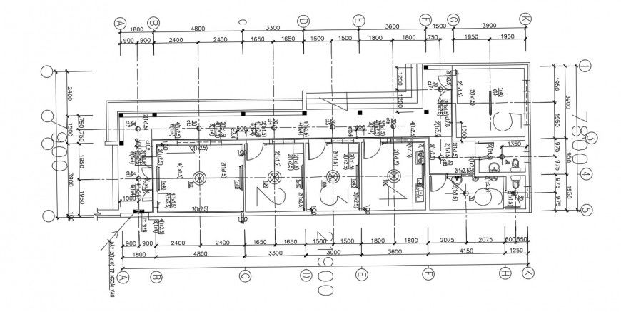
2d cad drawing of public toilet seprate section autocad software detailed with basic toilet area with long glass mirror and wash basin and gents toilet area and ladies toilet area for all three floors and door elevation seprately with mentioned dimension.
Uploaded by:
Eiz
Luna

