2d cad drawing of foyer area elevation autocad software
Description
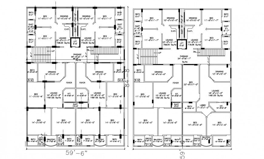
2d cad drawing of foyer area elevation autocad software detailed with living room with dining area and detailed with drawing room and othr six bedroom elevation with attached toilet area and other detaield with lounge area.
File Type:
DWG
File Size:
2.3 MB
Category::
Construction
Sub Category::
Construction Detail Drawings
type:
Gold
Uploaded by:
Eiz
Luna

