Multiple column and cornices blocks drawing details dwg file
Description
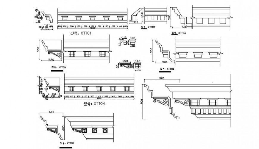
Multiple columns and cornices blocks drawing details that include a detailed view of cornices blocks, cornices blocks with colors details and size details, type details, etc for multi-purpose uses for cad projects.
File Type:
DWG
File Size:
436 KB
Category::
Dwg Cad Blocks
Sub Category::
Cad Logo And Symbol Block
type:
Gold
Uploaded by:
Eiz
Luna

