Classroom constructive section and construction details dwg file
Description
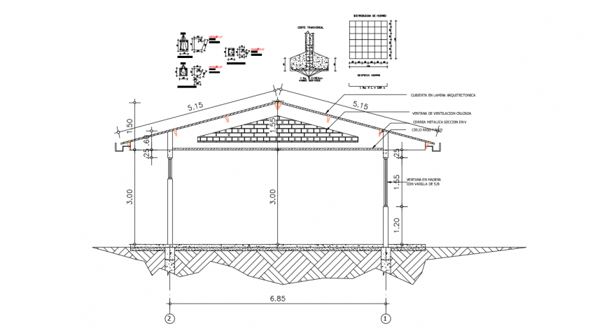
Classroom constructive section and construction details that includes memory of materials, footings details, column view and beam construction, covers closure type with soil buried wall closure and interior partition and granite veneer of the country with steel supports, halfeneisen type with Brick partition with plaster plastering and Concrete wall and much more of classroom details.
Uploaded by:
Eiz
Luna

