2d cad drawing of commercial corporate office plan autocad file
Description
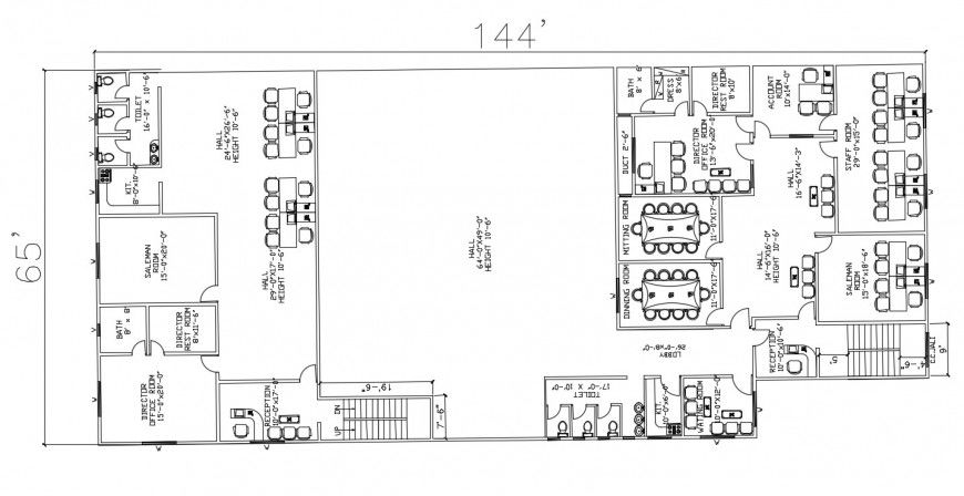
2d cad drawing of commercial corporate office plan autocad file shows the long hall with meeting room and dining room and directors room and attached rest room and recption area and kitchen area and side waiting room with staircase elevation on reception area side.
Uploaded by:
Eiz
Luna

