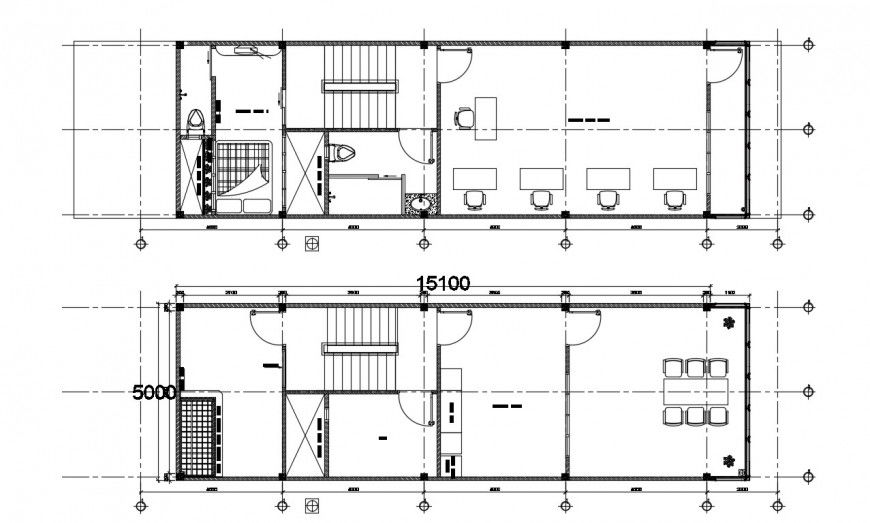
2d cad drawing of bedroom plan with office area autocad file
Description
2d cad drawing of bedroom plan with office area autocad file detailed with bedroom plan with attched toilet area and work office area and balcony area and other drawing detailed with dining area and staircase on other side.
Uploaded by:
Eiz
Luna

