floor layout detail top view cad file
Description
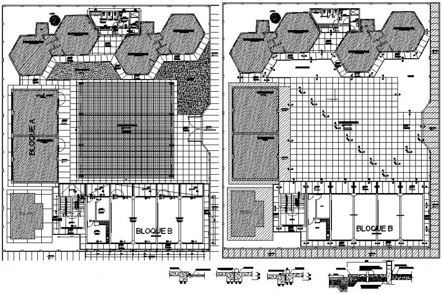
The architecture 2d cad drawing floor layout detail top view cad file include classroom, playground, staff cabin, structure detail, satir case detail, and slab section detail in cad file, download in the free floor; layout detail in autocad format and use for cad presentation.
Uploaded by:
Eiz
Luna

