Design Of Bridge
Description
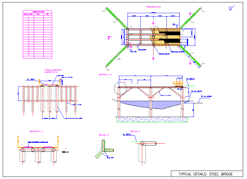
The main cables continue beyond the pillars to deck-level supports, and further continue to connections with anchors in the ground. Design Of Bridge Design, Design Of Bridge DWG file download.

Uploaded by:
Fernando
Zapata

