2d cad drawing of general library autocad software
Description
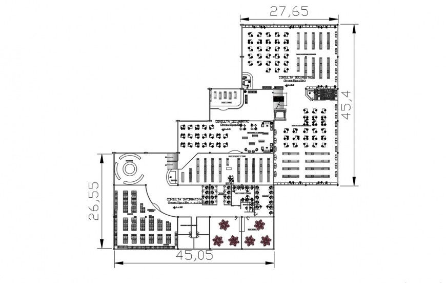
2d cad drawing of general library autocad software detaikeld with library hall and sperate reception area with seprate table cabinet and book shelf cabinet and other cabinet drawing and seprate lecture room and other detailed book libarry and office room
Uploaded by:
Eiz
Luna

