Public ministry office project layout plan cad file
Description
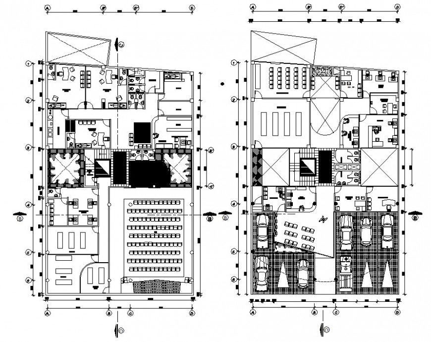
the architecture layout plan of the ground floor and first-floor plan includes all furniture detailing, ministry cabins, officer cabins, waiting area, reception area, outside parking arrangement, download in a free cad file and use for cad presentation.
Uploaded by:
Eiz
Luna

