Government work station floor detail cad file
Description
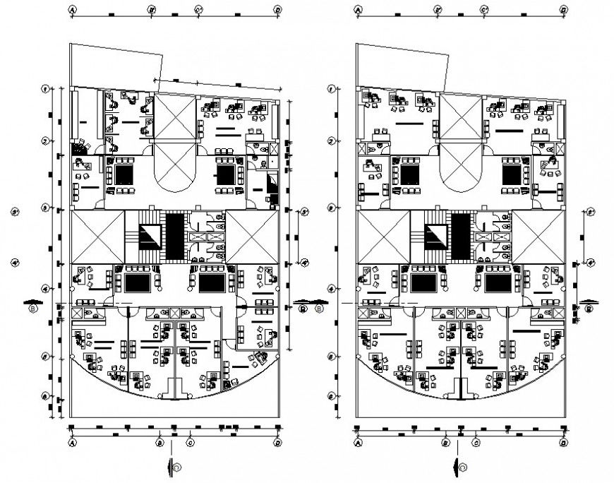
2d cad drawing of third and fourth floor government office work station detail cad file along with furniture detailing includes miscellaneous cabins, waiting area, meeting room, download in free cad file and use for cad presentation of office work station project.
Uploaded by:
Eiz
Luna
