2d Drawings details of bungalow CAD plan dwg AutoCAD software file
Description
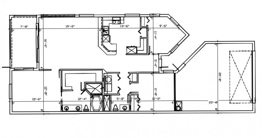
2d Drawings details of bungalow CAD plan dwg AutoCAD software file that shows work plan drawings details of the apartment along with room dimension details. Room includes detail of drawings room bedroom kitchen and dining area sanitary toilet bathroom detailed also included drawings.
Uploaded by:
Eiz
Luna

