Commercial center building 2d view work plan dwg autocad software file
Description
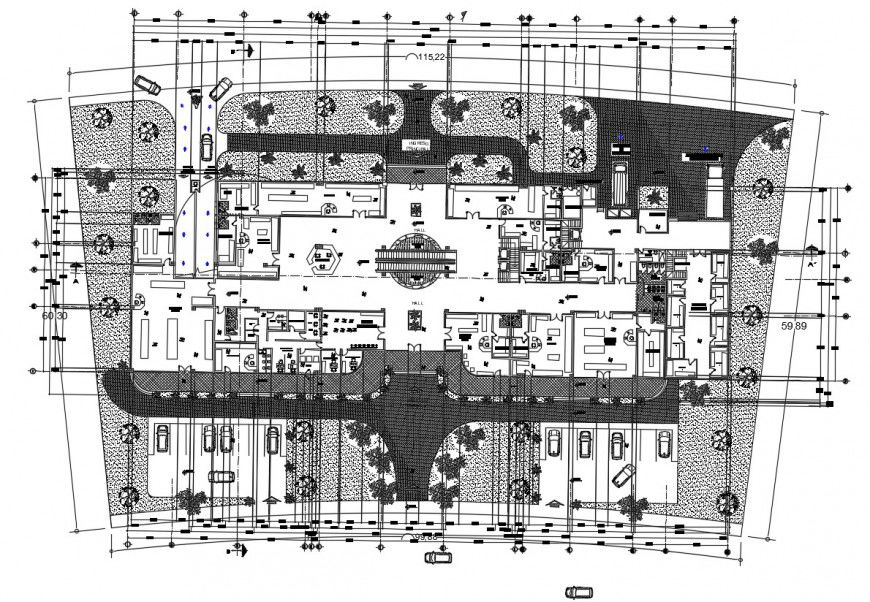
Commercial center building 2d view work plan dwg autocad software file that shows work plan drawings detail of building units along with parking space detail and compound wall details and dimension hidden line detail section line details also included in drawings.
Uploaded by:
Eiz
Luna

