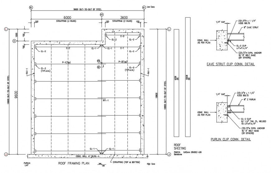
Roof framing plan with purlin concrete details dwg file
Description
Roof framing plan with purlin concrete details that includes a detailed view of previously linked support with multilayer insulation panel and rubber shock absorber element with galvanized profile for anchorage and acoustic sandwich with dimensions details, memory of materials, concrete details, cuts and joints details, reinforcement details, water proofing details and much more of roof structure details.
Uploaded by:
Eiz
Luna

