2d cad drawing of floor slab detail autocad software
Description
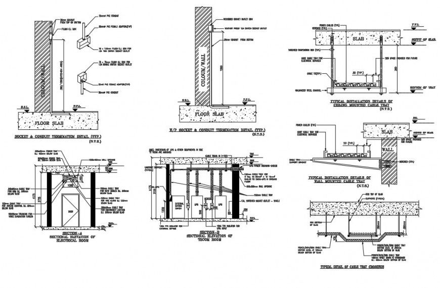
2d cad drawing of floor slab detail autocad software detailed with socket and conduct termination detail and other cable tray and other constuctrion detail with typical installation detailed ceiling mounted cable tray.
Uploaded by:
Eiz
Luna

