2d cad drawing of ceiling layout plan autocad file
Description
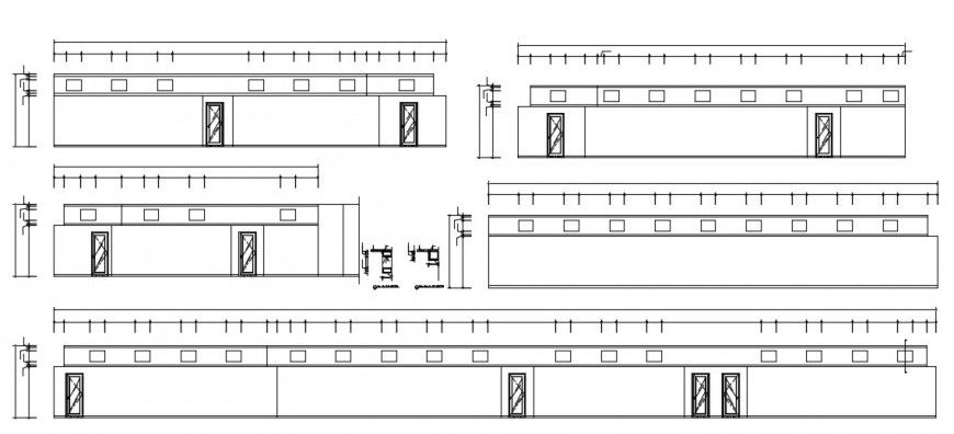
2d cad drawing of ceiling layout plan autocad file with window blocks shown in drawing and door elevation shown with connected dimension and at various floor level wit mentioned description.
File Type:
DWG
File Size:
173 KB
Category::
Construction
Sub Category::
Construction Detail Drawings
type:
Gold
Uploaded by:
Eiz
Luna

