Metal Roof Installation cad file
Description
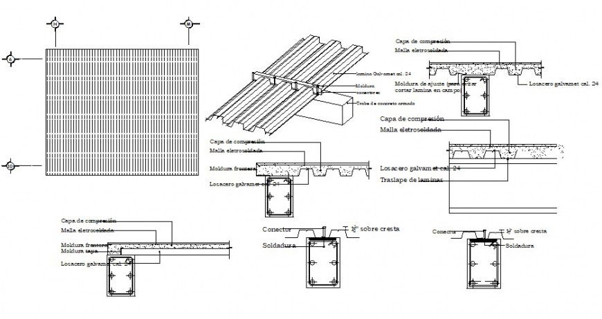
This installation training manual addresses the installation of metal roofing material and related accessories. It includes information pertaining to both new construction reroofing and retrofit projects. This installation training manual was developed to provide information regarding the installation of most metal roofing products, and to serve as a reference for most types of metal roofing products and applications. This manual does not address the unique characteristics of factory assembled insulated metal panel roofs or special environments such as cold storage, download in free cad file and use for cad presentation.
File Type:
DWG
File Size:
44 KB
Category::
Construction
Sub Category::
Construction Detail Drawings
type:
Gold
Uploaded by:
Eiz
Luna

