CAD hospital building 2d view plan in autocad software file
Description
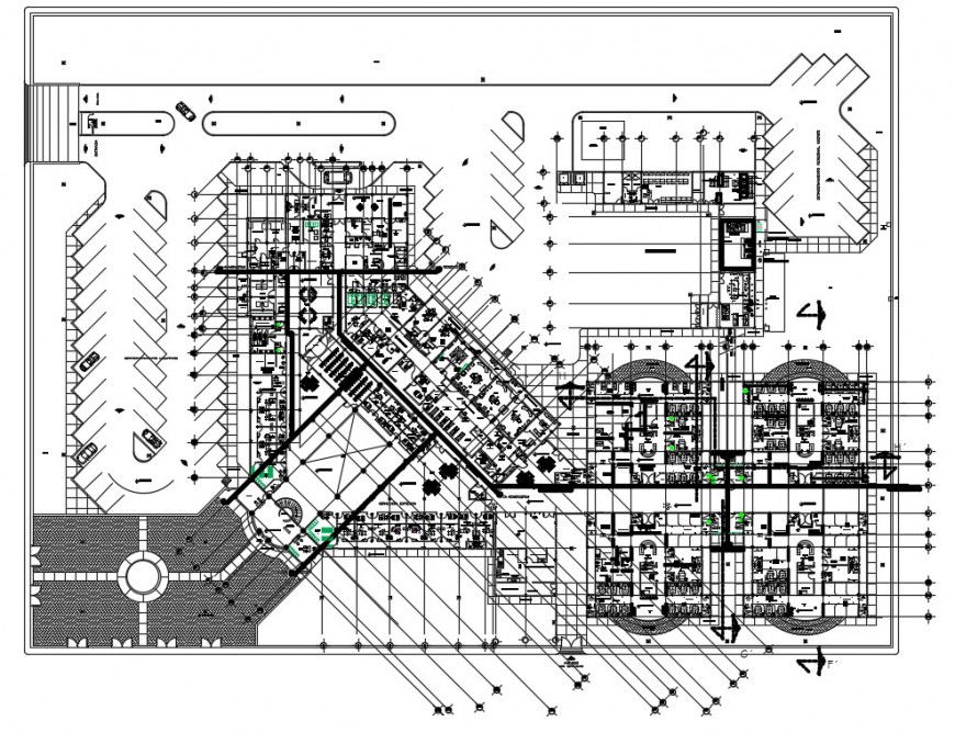
CAD hospital building 2d view plan in autocad software file that shows work plan drawings detail of building units along with furniture blocks detail in hospital. Waiting area details and compound wall details along with parking space dteials and entrance gate detials also included in drawings.
Uploaded by:
Eiz
Luna

