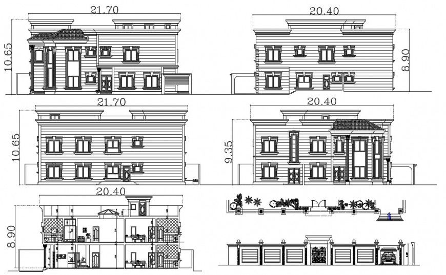
Section and elevation drawings of apartment dwg autocad software file
Description
Section and elevation drawings of apartment dwg autocad software file that shows section drawings dteials of building along with building difefret sides of elevation dteials like front elevation side elevation and rear elevation. Building height and width dteuals also included in drawings.
Uploaded by:
Eiz
Luna

