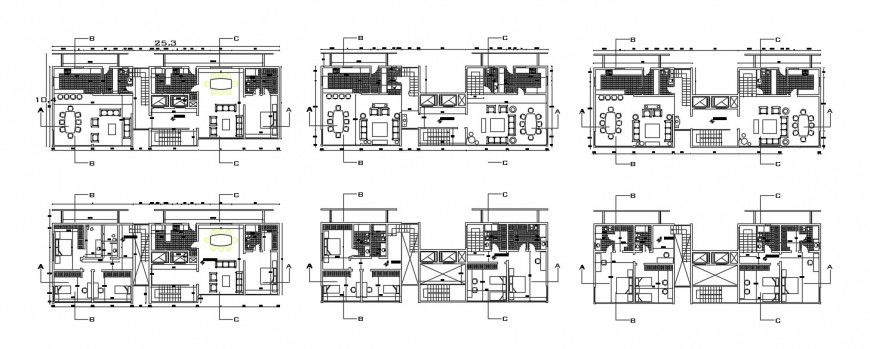
Six floor distribution plan drawing details for apartment building dwg file
Description
Six floor distribution plan drawing details for apartment building that includes a detailed view of main entry house door, drawing room and living room with family hall details kitchen and dining area, indoor staircases and laundry area and balcony, details and bedroom or master bedroom, toilets and bathroom with indoor doors, furniture details and much more of apartment project.
Uploaded by:
Eiz
Luna

