2d cad drawing of floor elevation top elevation autocad file
Description
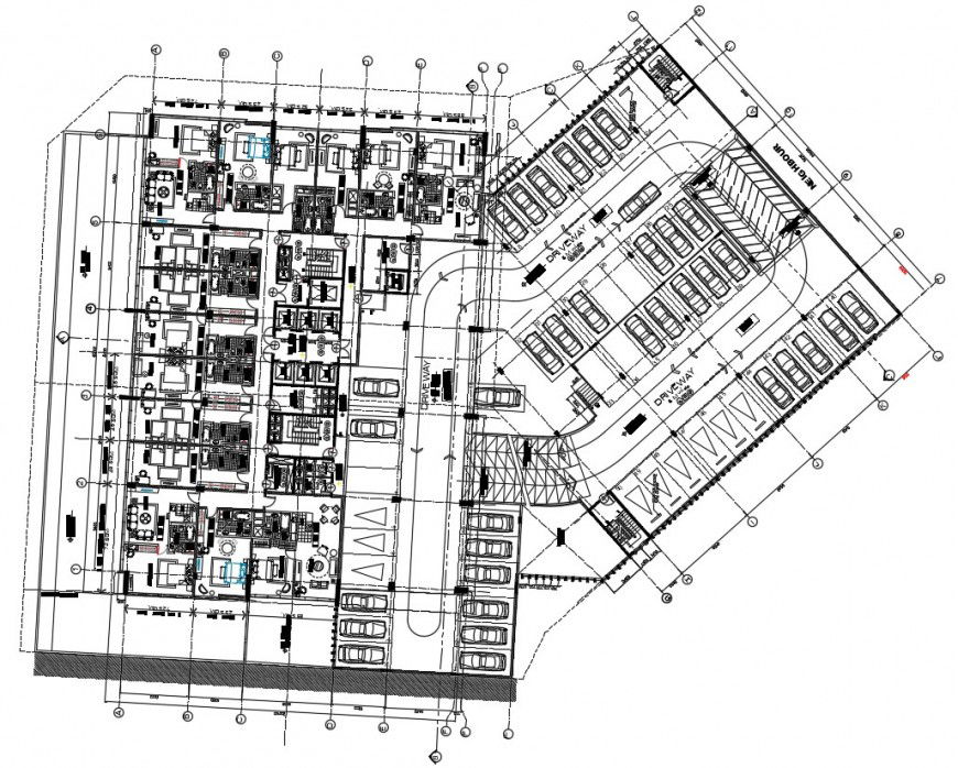
2d cad drawing of floor elevation top elevation autocad file detailed with car parking area shown with all basic structure plan with bedroom plan elevation with description and dimension and four wheeler paeking seen in drawing.
File Type:
DWG
File Size:
2.1 MB
Category::
Construction
Sub Category::
Construction Detail Drawings
type:
Gold
Uploaded by:
Eiz
Luna

