2d cad drawing of TV cabinet elevation
Description
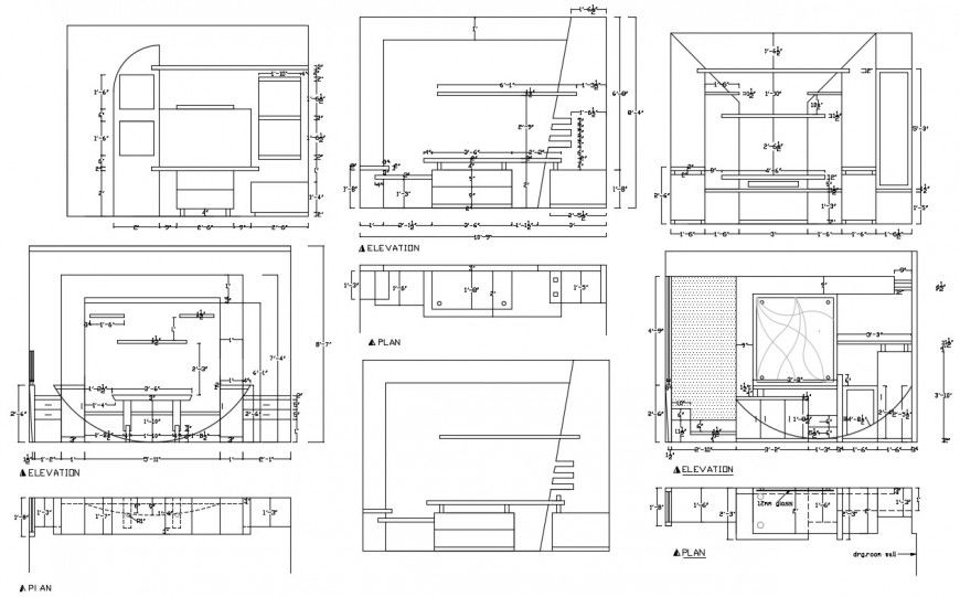
2d cad drawing of tv cabinet elevation shown in drawing with detailed description shown with all baic drawing with floor cabinet and other upper elevation plan shown in drawing with wall paininting tecxture plan.
Uploaded by:
Eiz
Luna
