Foundation of structural design cad file
Description
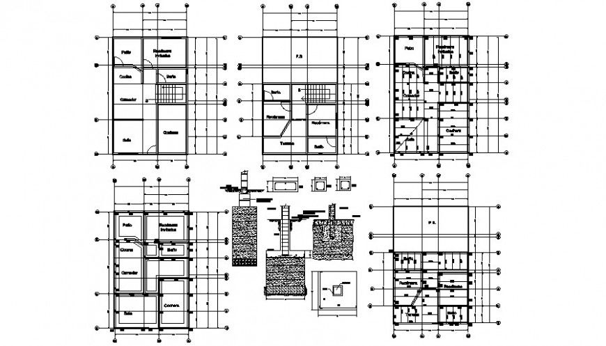
2d cad drawing of residence foundation of structural design cad file includes all construction detail, concrete detail, base foundation cement detail, the filter of crushed gravel detail, download in free autoicad file and use for cad presentation in autocad format.
File Type:
DWG
File Size:
736 KB
Category::
Construction
Sub Category::
Construction Detail Drawings
type:
Gold
Uploaded by:
Eiz
Luna

