2d cad drawing of single floor detail
Description
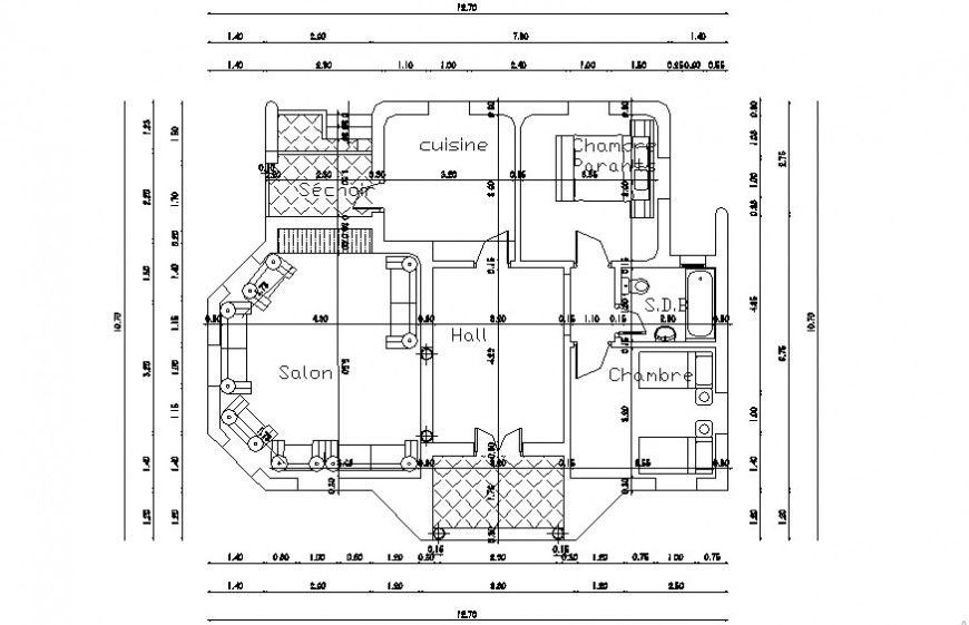
2d cad drawing of floor layout plan includes kitchen design, bedrooms, dining area, drawing room, along with all furniture detail, and dimension detail in cad file, download dwg file and use for cad presentation, a collection of fabulous ideas that would serve as a good source of inspiration for anyone thinking about redecorate drawing.
Uploaded by:
Eiz
Luna

