residence ground floor and first floor layout plan cad file
Description
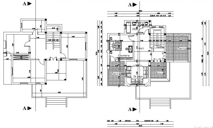
the architecture layout plan of the ground floor and first-floor plan includes a master bedroom, drawing room, kitchen, open terrace along with all dimension detail, description detail and furniture blocks using for improve the cad presentation.
Uploaded by:
Eiz
Luna

