architecture villa project detail cad file
Description
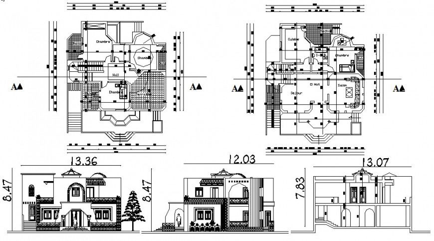
2d cad drawing of the architecture layout plan includes 3 bedrooms, drawing room, modular kitchen, dining area, along with all furniture detailing and description detail, sectiion plan and 1 side elevation fdesign view for visualise this projewct, download in free autocad file and collect the idea for good source that would help to residence project presentation
Uploaded by:
Eiz
Luna

