single family residence project detail dwg file
Description
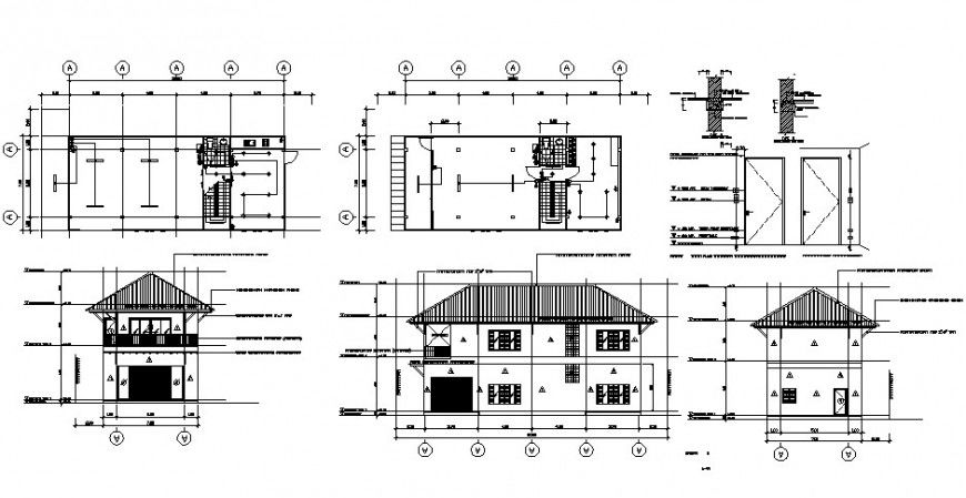
2d cad drawing of residence project detail layout plan of the ground floor and first-floor plan, door design, section plan, beam section detail and elevation design of house project detail cad file, download in free autocad file and use for cad multipurpose cad project.
Uploaded by:
Eiz
Luna
