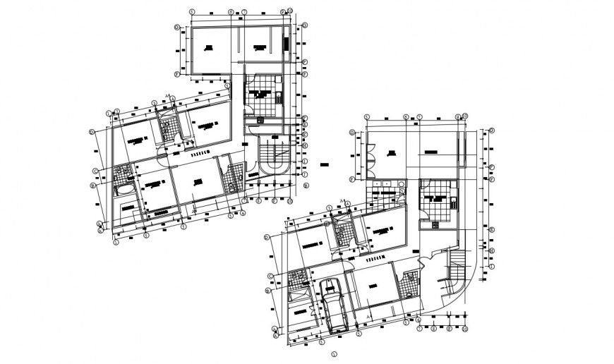
2d cad drawing of basement apartment autocad software
Description
2d cad drawing of basement apartment autocad software detailed with floor tiles shown in drawing with staircase area and other top elevation of car parking area and toilet area with door elevation.
Uploaded by:
Eiz
Luna
