multiple family residence cad file
Description
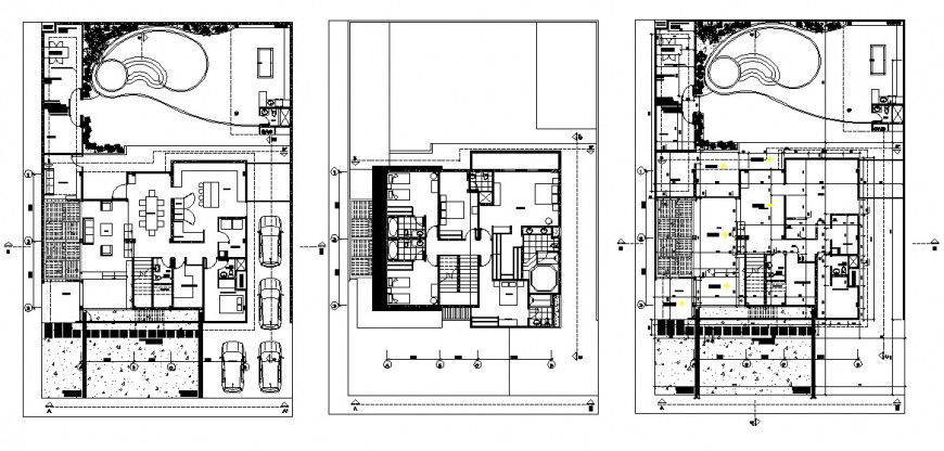
the architecture layout plan inclufdes 6 bedrooms, drawing room, modular kitchen, dining area, along with all furniture detailing and description detail, section plan and download in free autocad file and collect the idea for good source that would help to residence project presentation
Uploaded by:
Eiz
Luna

