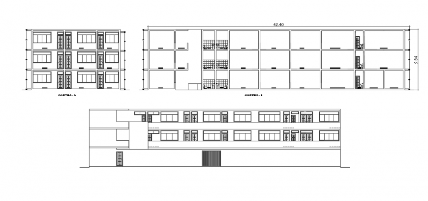
Three story college building main and side elevation and main section details dwg file
Description
Three story college building main and side elevation and main section details that includes a detailed view of flooring view with indoor and outdoor doors and windows view and staircase elevation and sectional view details, balcony view with wall design, parking area and dimensions and roof or terrace view and much more of college building details.
Uploaded by:
Eiz
Luna

