2d drawings of a residential apartment with shop details dwg file
Description
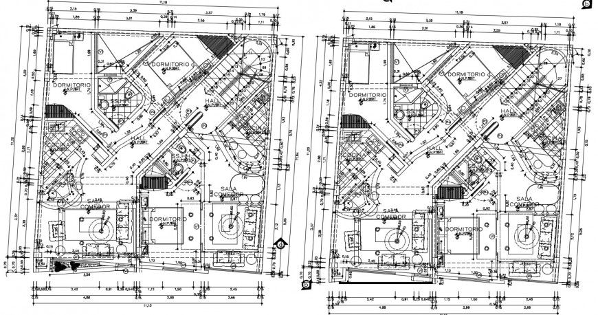
2d drawings of a residential apartment with shop details dwg file that shows work plan drawings details of the apartment along with dimension hidden line details. Section line details floor level detail staircase details sanitary toilet bathroom detail also inlcuded in drawings.
Uploaded by:
Eiz
Luna

