Auditorium hall distribution plan drawing details dwg file
Description
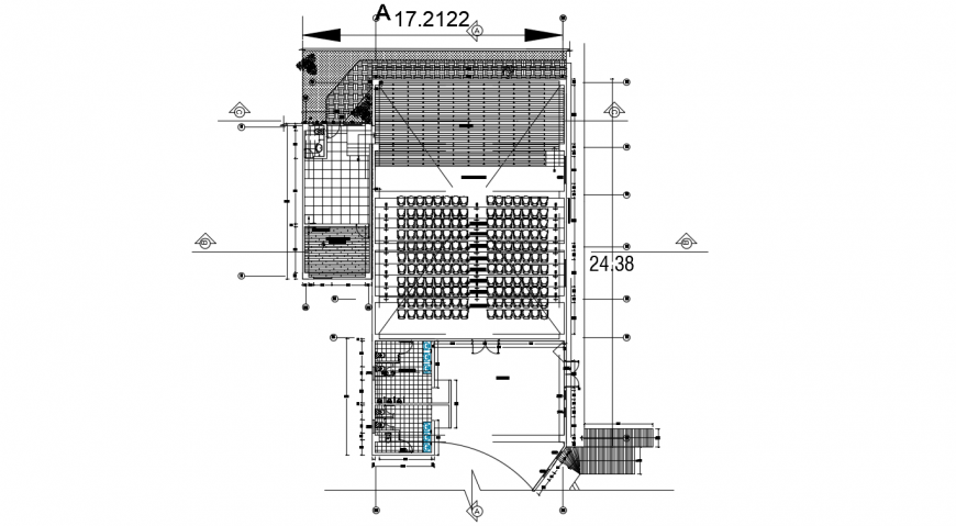
Auditorium hall distribution plan drawing details that include main entry gate, children play area and common lobby, theater and passage details, display area and shopping plaza department, green space, gallery and theme restaurant details, viewing gallery, kitchen and waiting area, open space with sanitary facilities and much more of center details.
Uploaded by:
Eiz
Luna
