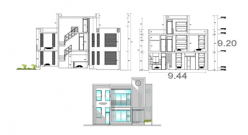
2d cad drawing of banking housing exterior AutoCAD software
Description
2d cad drawing of banking husing exterior aytocad software dteaied with two floor elevation with staircase and other detailed shutter cabinet with basement car pareking elevation with window panel and other detailed descroiption and mentione diemsnion.
Uploaded by:
Eiz
Luna

