Car dealer ship office distribution plan cad drawing details dwg file
Description
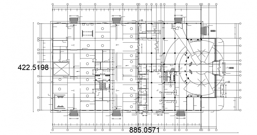
Car dealer ship office distribution plan cad drawing details that include a detailed view of wall sections, furniture layout plan, dimensions and not scale details, sanitary facilities, reception and waiting area etc with colours details and size details, type details etc for multi-purpose uses for cad projects.
Uploaded by:
Eiz
Luna

