Hotel building floor plan drawings 2d view details in autocad file
Description
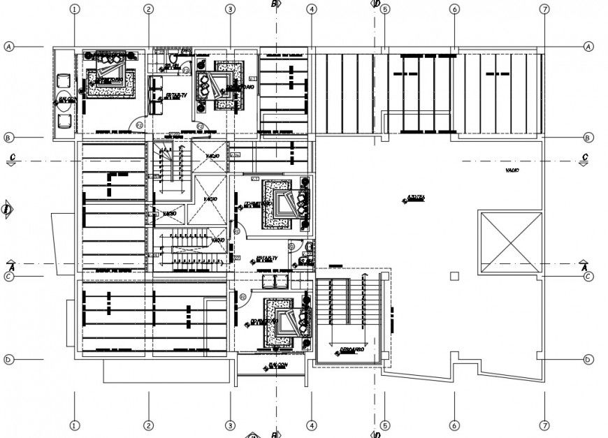
Hotel building floor plan drawings 2d view details in autocad file that shows work pan drawings details of building along with furniture blocks details staircase details. Bedroom details with attached sanitary bathroom detail section line details also inlcuded in drawings.
Uploaded by:
Eiz
Luna

