House plan with foyer and parking area autocad software
Description
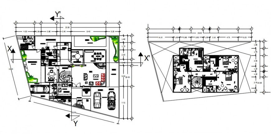
House plan with foyr and parking area autocad software detailed with basic living room with dining area and other drawing room with kitchen area and washroom plan other staircase area seen in drawing.
Uploaded by:
Eiz
Luna

