2d cad drawing of commercial center top elevation autocad software
Description
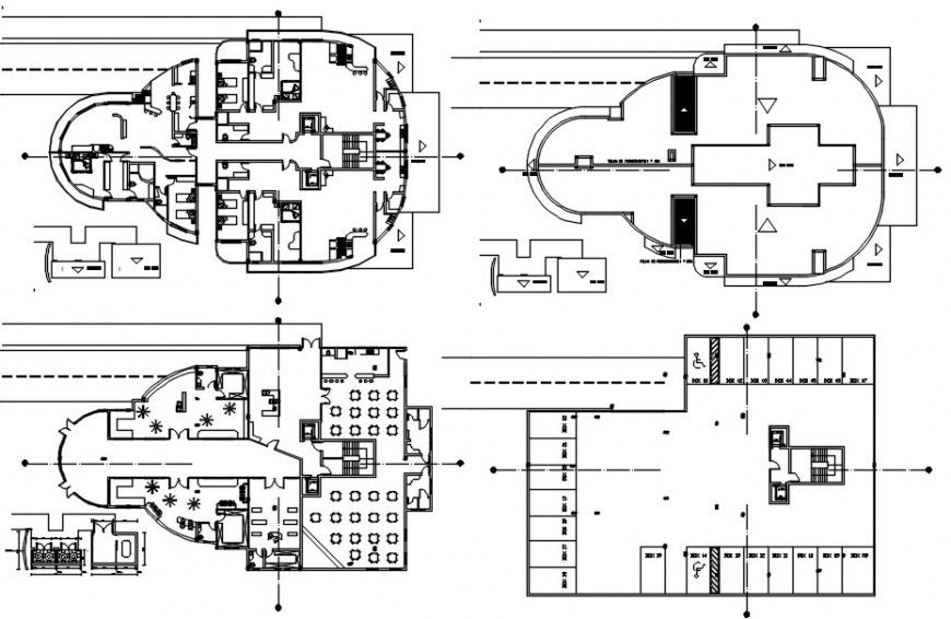
2d cad dsrawing of commercial centre top elevation autocad software detailed with dining area and other detailed office room and other elevation shown with bedroom plan and other detailed description shown in drawng with other office detail shown.
Uploaded by:
Eiz
Luna

