2d cad drawing of restaurant floor view autocad software
Description
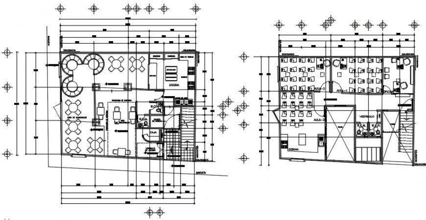
2d cad drawing of restaurant floor view autocad software detailed with dining area and other detaike with row wise table and other detailed room elevation and mentioned dimension shown in drawing.
Uploaded by:
Eiz
Luna

